Thiết kế – Thi công nội thất Nhà phố Phan Sào Nam, Q. Tân Bình
Thiết kế – thi công nội thất nhà phố ở đường Phan Sào Nam, Quận Tân Bình là dự án được công ty Nội thất Ngô Gia Phát thiết kế và thi công hoàn thiện 100%.
Chủ đầu tư: Anh Gia Nguyên
Địa chỉ: 32/19 Phan Sào Nam, P.13, Tân Bình
Chất liệu chính: MDF phủ Melamine, Acrylic An Cường, cánh nhôm kính
Hạng mục nội thất: Tủ bếp, tủ đồ khô, tủ áo cho 3 lầu
Ngô Gia Phát với thương hiệu 4Life Decor là công ty chuyên thiết kế thi công nội thất căn hộ chuyên nghiệp, chuyên sản xuất thi công các sản phẩm nội thất nói chung cho đến tủ bếp, kệ bếp nói riêng. Với lợi thế có nhà xưởng sản xuất trực tiếp cùng đội ngũ thợ lành nghề, tận tâm với nghề, có trách nhiệm với khách hàng; khách hàng đến với Ngô Gia Phát cam kết 100% nhận được mức giá cạnh tranh nhất, chất lượng tốt nhất.
Mục lục
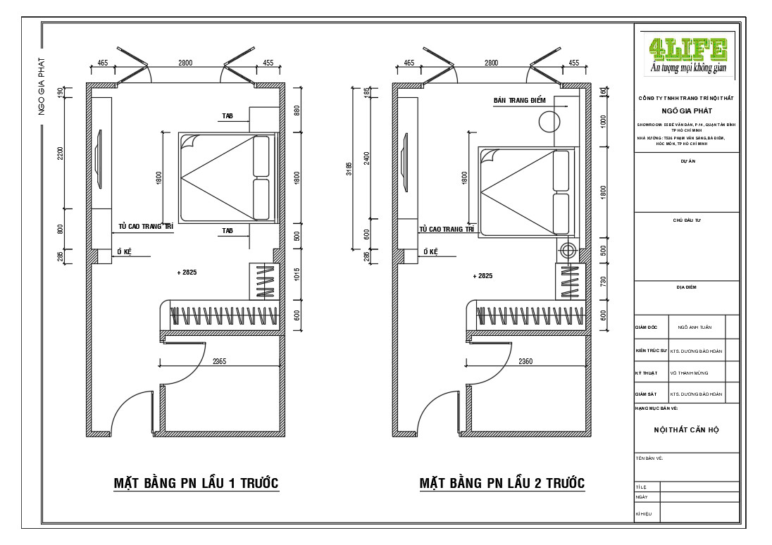
Chi tiết mặt bằng bố trí nội thất các phòng


Hình ảnh thiết kế – Thi công nội thất nhà phố chi tiết

Tủ bếp Phan Sào Nam 3D

Tủ bếp Phan Sào Nam 3D View 2

Tủ bếp Phan Sào Nam 3D View 3

Hình ảnh thi công tủ bếp view 1

Hình ảnh thi công tủ bếp view 2

Tủ áo lầu 1 trước

Tủ áo lầu 2 trước

Tủ áo lầu 2 sau

Tủ áo lầu 2 sau view 2









